Вхід на сайт

Ел. пошта:
Пароль:

Реєстрація на сайті

Призвіще: Область:
Ім'я: Населений пункт:
    По батькові: Номер телефону:
    Ел. пошта: Компанія:
      Пароль: Посада:
      Повторіть пароль: Рік початку роботи:
      Фото:
      З правилами розміщення об'єктів погоджуюсь

      Забули пароль?

      Вкажіть ел. пошту — ми надішлемо Вам новий пароль для входу
      Ел. пошта:

      Проблема на сайті

      Закрити
      Ваш e-mail:
      (необов'язково)
      Розкажіть нам, що сталось

      без комісії ул. Київська, 64 — Продається квартира

      (г. Обухов, Обуховский район)

      50000 $

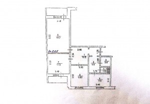
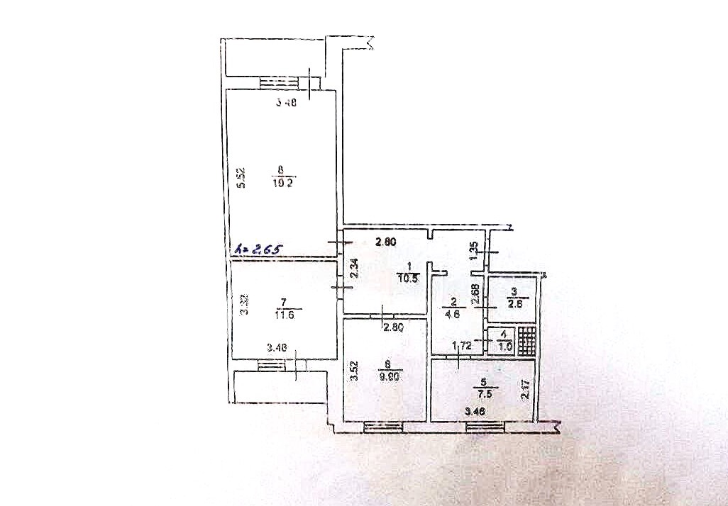
      Загальна площа: 71 кв.м

      Жила площа: 40 кв.м

      Площа кухні: 8 кв.м

      Кімнат: 3

      Поверх: 5

      К-ть поверхів: 9

      Пропонуємо 3-кімнатну квартиру за адресою: вул. Київська, 64.

      Характеристики:

      5-й поверх 9-поверхового будинку

      Площа: 71 м² (житлова – 40 м², кухня – 8 м²)

      3 роздільні кімнати – комфорт для всієї родини

      2 засклені лоджії – місце для відпочинку чи зберігання

      Великий передпокій, Роздільний санвузол.

      Квартира тепла та світла, у житловому стані, з меблями та технікою. При бажанні нові власники зможуть легко оновити інтер’єр під свій смак.

      Переваги локації:
      Все необхідне поруч – новий «ЕПІЦЕНТР», школа, дитсадок, гіпермаркет, аптека, банк, інш. Зручна транспортна розв’язка – зупинка всього за 3 хвилини від дому.

      Надіслати скаргу

      Закрити
      Поскаржитися на об'єкт «ул. Київська, 64 (г. Обухов, Обуховский район)»
      Ваш коментар:(Необов'язково)
      Ваша скарга буде надіслана ріелтору, що розмістив об'єкт, а також адміністрації сайту АФНУ.
      Ваше ім'я:
      (Обов'язково)
      Ваш e-mail для відповіді:
      (Обов'язково)

      Коментарі