ул. Независимости Украины — Продається торгівельний майданчик
(г. Кривой Рог, Долгинцевский район)
350 $ за кв.м.
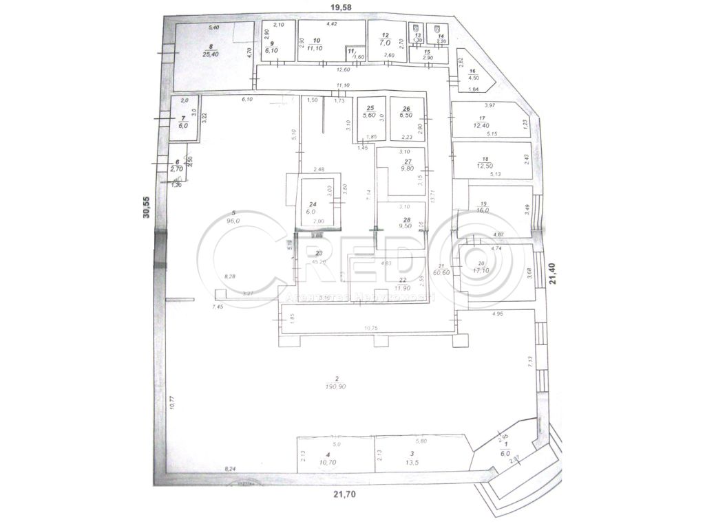
Загальна площа: 600 кв.м
Поверх: 1
К-ть поверхів: 1
Продаж комерційної нерухомості Довгинцевський район, Вул. Незалежності України
Про об’єкт: - Окремо розташована будівля - Мікр. Східний-2 - Загальна площа: 600 кв.м
Планування об’єкту: - Одноповерхова будівля - Два центральних, та додатковий виходи - Вільне планування
Комунікації: - Електроенергія - 40кВт; 380 Вт - Центральне водопостачання - Центральна каналізація - Парко місця для автомобілів
Логістична розв’язка: - Об’єкт знаходиться в середені житлового масиву - Зупинка громадського транспорту - Густонаселений район
Особливості приміщення: - Приміщення вільного призначення, можлива реконструкція - Підійде під торговельний, розважальний комплекс, або будь яку Вашу діяльність.
Ціна $350 за кв.м
За будь-якими питаннями за цією або схожими пропозиціями звертайтесь за номером телефону, де вам відповість наш ріелтор 097 541 73 31.