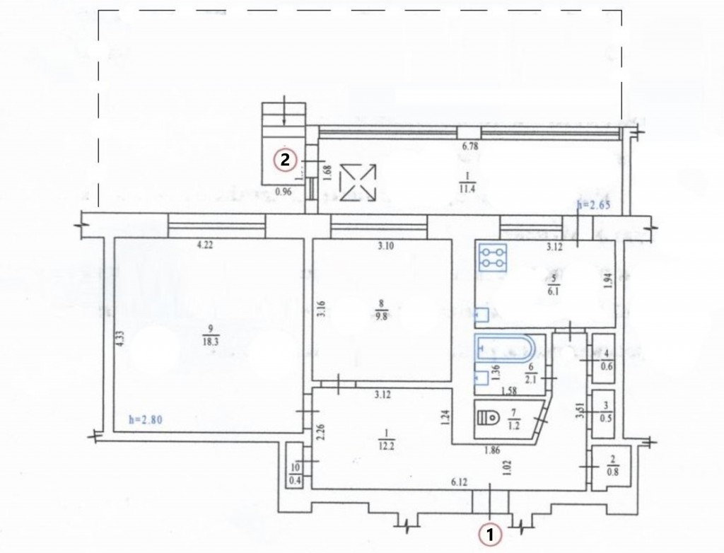
ПРОДАМ 2-КІМНАТНУ КВАРТИРУ ТИПУ ТАУНХАУС з додатковим приватним виходом (дивись на плані вхід 2) у задній дворик (палісадник) у ЦЕНТРІ ПОЛТАВИ Розташування: вул. Короленка, поруч із Березовим сквером — комфортне та затишне місце для життя. Параметри: • Площа: 63,4 м² • 1-й поверх • Висота стелі: 2,8 м • Перекриття: з/б Планування: • Дві окремі кімнати: 18,3 м² + 9,8 м² • Хол / коридор: 12,2 м² • Балкон: 11,4 м² з підвалом / погребом • Гардеробна • 3 окремі кладовки Особливості: • Приватний вихід у задній дворик (палісадник) для відпочинку або садівництва (дивись на плані вхід 2) • Формат проживання, наближений до таунхаусу • Зручне розташування поруч із центром міста Квартира поєднує комфорт, приватність та функціональне планування — ідеальний варіант для тих, хто хоче жити в центрі Полтави, але з відчуттям власного простору.
Продаж 2 кімнатної квартири на ближній Леваді по проспекту Богдана Хмельницького (поряд з дитячою обласною лікарнею), з окремими кімнатами та індивідуальним лічильником на опалення Характеристика квартири: - загальна площа 47,1…