Вхід на сайт

Ел. пошта:
Пароль:

Реєстрація на сайті

Призвіще: Область:
Ім'я: Населений пункт:
    По батькові: Номер телефону:
    Ел. пошта: Компанія:
      Пароль: Посада:
      Повторіть пароль: Рік початку роботи:
      Фото:
      З правилами розміщення об'єктів погоджуюсь

      Забули пароль?

      Вкажіть ел. пошту — ми надішлемо Вам новий пароль для входу
      Ел. пошта:

      Проблема на сайті

      Закрити
      Ваш e-mail:
      (необов'язково)
      Розкажіть нам, що сталось

      без комісії Героїв Небесної Сотні, 36 — Продається квартира

      (с. Софиевская Борщаговка, Киево-Святошинский район)

      62000 $

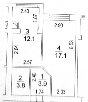
      Загальна площа: 37 кв.м

      Жила площа: 17 кв.м

      Площа кухні: 12 кв.м

      Кімнат: 1

      Поверх: 7

      К-ть поверхів: 10

      Продаж квартири в ЖК Львівський маєток, адреса - с. Софіївська Борщагівка вул. Героїв Небесної Сотні, 36

      Характеристики:

      - Загальна площа: ~37 м²
      - Поверх: 7
      - Гаряча вода та опалення від двоконтурного газового котла;
      – Є ліфт;
      - Квартира з візуально свіжим ремонтом без необхідності термінових вкладень.;
      - Важливо - формат - заїхати та жити або здати в оренду;

      Планування (дуже вдале)

      Простір грамотний на 3 повноцінні зони:
      Кухня з нормальною робочою зоною;
      Зона столової - лоджії;
      Повноцінна спальна кімната з двоспальним ліжком;
      Гардеробна кімната ну дуже простора;

      Вид та комфорт

      Нормальний вигляд з вікон, будинки теплі, з гарною енергоефективністю
      Сьомий поверх – без стресу, навіть якщо ліфт раптом не працює
      Вся техніка – якісні бренди, не «одноразові», є кондиціонер.

      Пропозиція без комісії для покупця і без будь-яких прихованих платежів, що робить його вигіднішим, ніж більшість варіантів навколо.

      Единим представником Власника є Агенція нерухомості ПІК

      Без дублювання в рекламі
      Запис на перегляд по номеру в оголошенні або написати можна на телеграм - Realtor_PIK_Kiev

      В ОЛХ переписка не ведеться
      Щоб отримати відео - Звертайтесь, будь ласка в телеграм або вайбер за номером в оголошенні

      Козак Вячеслав

      Козак Вячеслав Вячеславович

      Руководитель агентства (ПИК)

      +380 (50) 860-32... Показати номер телефона +380 (50) 860-32-58, +380 (67) 356-70-68

      Поскаржитися на об'єкт

      Надіслати скаргу

      Закрити
      Поскаржитися на об'єкт «Героїв Небесної Сотні, 36 (с. Софиевская Борщаговка, Киево-Святошинский район)»
      Ваш коментар:(Необов'язково)
      Ваша скарга буде надіслана ріелтору, що розмістив об'єкт, а також адміністрації сайту АФНУ.
      Ваше ім'я:
      (Обов'язково)
      Ваш e-mail для відповіді:
      (Обов'язково)

      Коментарі