без комісії
ул. Героев Труда, 1 — Продається квартира
(г. Харьков, Ленинский район)
2110300 грн.
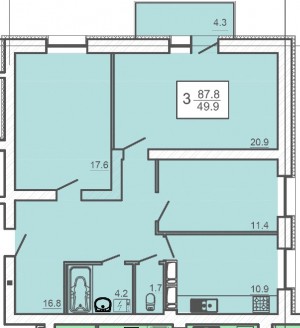
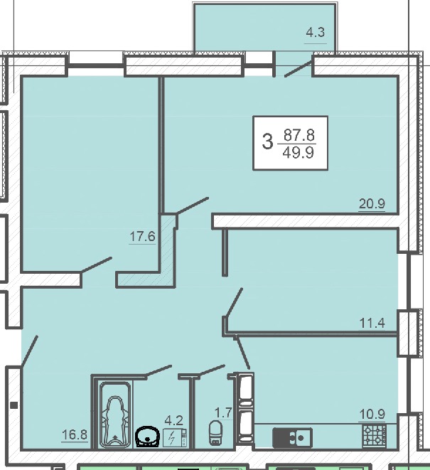
Загальна площа: 89.8 кв.м
Жила площа: 52 кв.м
Площа кухні: 11 кв.м
Кімнат: 3
Поверх: 9
К-ть поверхів: 16
БЕЗ КОМІСІЇ, за ціною забудовника, продаж 3-кімнатної квартири в новобудові ЖК "Оазис" по вул. Героїв Праці, 1. Неподалік пролягають маршрути трамваїв і автобусів, станція метро «Героїв праці» знаходиться в 2-ух кілометрах. У безпосередній близькості знаходиться: ТРЦ "Караван" і "Дафі" де ви зможете знайти абсолютно все від звичайних продовольчих товарів так і чим зайняти себе на вихідних, садки, школи. Не варто забувати що сам комплекс розташований з одного боку на береговій лінії, а з іншого сосновий бір. Проектом передбачено благоустрій двору, що включає роботи з озеленення, формуванню газонів, пішохідних зон; облаштування дитячих і спортивних майданчиків, місць для відпочинку. - Квартира розташована в будинку 5 - здача запланована на 4 квартал 2021 року. Площа квартири: Загальна площа - 89.8 м²; Житлова площа - 52 м²; Кухня - 11 м². - СТАН КВАРТИРІ: • потрібен капітальний ремонт. КОМПЛЕКТАЦІЯ КВАРТИР: • встановлені перегородки як зазначено на плані; • металопластикові вікна (viknaland); • горизонтальна розводка опалення та радіатори опалення (є можливість поставити лічильник на тепло, регулятори на батареї і контролювати подачу тепла в квартиру, індивідуально); • вхідні залізні двері; • лічильник на електрику; • підведені комунікації (холодна, гаряча вода); • каналізація; • заведено електрику; • зроблено зовнішнє утеплення стін (утеплювач мінеральна вата 100 мм). - Буду радий Вас чути): Пн-Пт - 8: 00-20: 00. Сб-Нд - II: 00-20: 00 Святкові дні - вихідний.