Вхід на сайт

Ел. пошта:
Пароль:

Реєстрація на сайті

Призвіще: Область:
Ім'я: Населений пункт:
    По батькові: Номер телефону:
    Ел. пошта: Компанія:
      Пароль: Посада:
      Повторіть пароль: Рік початку роботи:
      Фото:
      З правилами розміщення об'єктів погоджуюсь

      Забули пароль?

      Вкажіть ел. пошту — ми надішлемо Вам новий пароль для входу
      Ел. пошта:

      Проблема на сайті

      Закрити
      Ваш e-mail:
      (необов'язково)
      Розкажіть нам, що сталось

      без комісії ул. Київська, 2/1 — Продається таунхаус

      (пгт. Козин, Обуховский район)

      320000 $

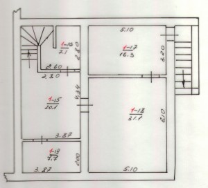
      Загальна площа: 320 кв.м

      Кімнат: 6

      К-ть поверхів: 3

      ПРОДАМ будинок 320 м2. Конча Заспа. Пропозиція від власника! Без комісії. Обухівський район. Конча заспа, селище Козин. 17-й км Старообухівського шосе. Відмінна дорога на 2 смуги у напрямку. ЖК Романове - 10 таунхаусів на 4 квартири кожен. Своя обгороджена територія. Територія під охороною, в’їзд за перепустками, відеоспостереження. ЖК має свій генератор, ел/енергія без перебою! Повний спектр послуг для мешканців: ЖЕК, гостьовий паркінг, тенісний корт, басейн, SPA-комплекс. Відмінне місце для відпочинку та життя. Поряд, в смт Козин, приватні та державні школи та дитячі садки.
      Здається в оренду квартира 320 м2 + 4 сотки землі. Підвал + 3 поверхи. Перший поверх: вітальня, кухня-їдальня, с\у. Другий поверх: 3 спальні, 2 с\у. Третій поверх-мансарда. Свіжий сучасний ремонт. Меблі та побутова техніка. Кондиціонери. Місце для відпочинку в саду, альтанка, газон, зона барбекю.
      Вартість – 320.000 $
      Дзвоніть, домовимося: 096-050-66-50 / 093-229-00-65

      Надіслати скаргу

      Закрити
      Поскаржитися на об'єкт «ул. Київська, 2/1 (пгт. Козин, Обуховский район)»
      Ваш коментар:(Необов'язково)
      Ваша скарга буде надіслана ріелтору, що розмістив об'єкт, а також адміністрації сайту АФНУ.
      Ваше ім'я:
      (Обов'язково)
      Ваш e-mail для відповіді:
      (Обов'язково)

      Коментарі